Ismerd meg a technológiát Lakossági ügyfeleknek Céges ügyfeleknek Típusházak Általános szerződési feltételek Adatvédelmi tájékoztató Kapcsolat

Titanio - 67m2

Leírása hamarosan...

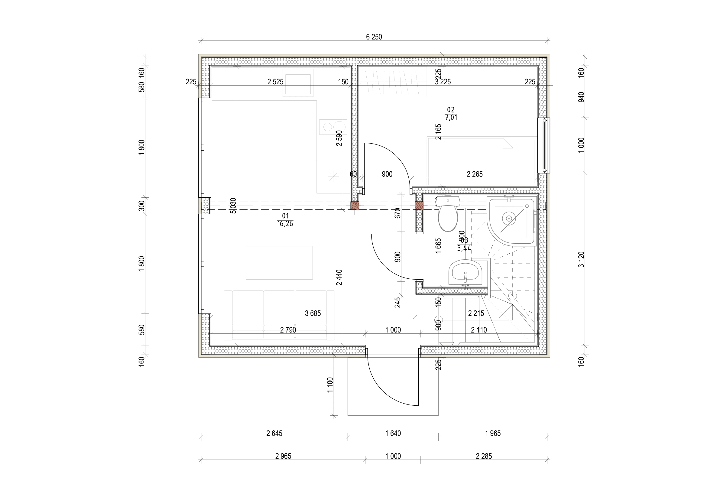
1. emelet:
  • Konyha nappalival 16.26 m²
  • Szoba 7.01 m²
  • WC 3.44 m²
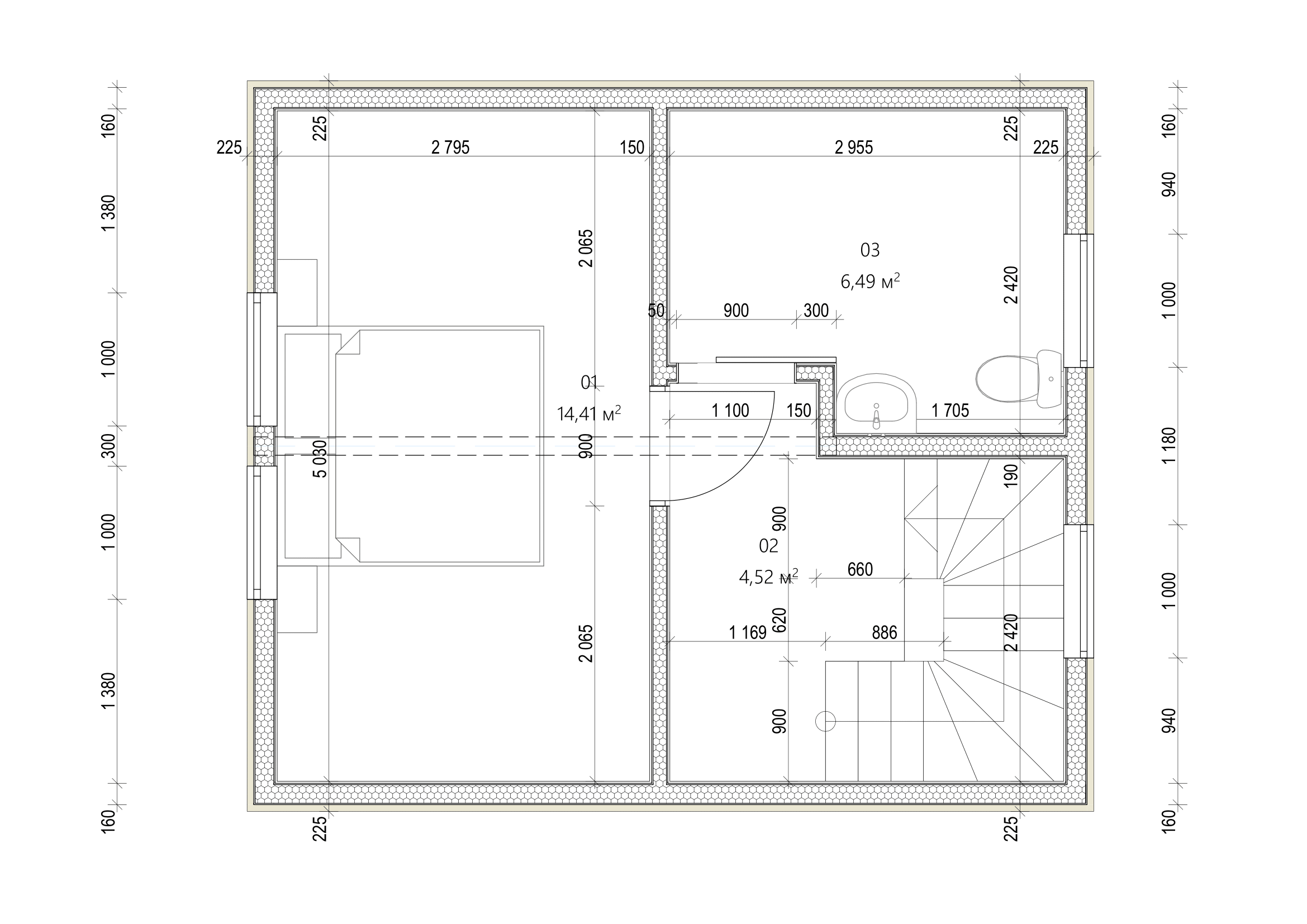
2. emelet:
  • Folyosó 4.52 m²
  • Szoba 7.2 m²
  • Szoba 7.2 m²
  • WC 6.49 m²
  • Nettó alapterület: 52.12 m²

Indulóár: Kérjen árajánlatot elérhetőségeink egyikén!

Kiknek ajánljuk?

A 30–89 m²-es SIP házak azoknak készültek, akik tudatos életvitellel élnek. Fiatal pároknak, kisgyermekes családoknak, egyedülállóknak vagy a természethez visszavágyó városlakóknak ideális választás, akik értékelik az energiatakarékosságot, a letisztult formavilágot és a praktikus térhasználatot.

Ajánlatkérés

Egyszerű forma, végtelen lehetőség

A házak alakja egyszerű, mégis karakteres – könnyen illeszkedik vidéki tájba, nyaralóövezetbe vagy kertvárosi környezetbe. Az elrendezés minden négyzetmétert kihasznál: tágas nappali, világos hálók, igény szerint dolgozósarok, galéria vagy tároló – rugalmas, mint az élet maga.

Ajánlatkérés

Miért éri meg velünk építkezni?

Ez a háztípus ideális választás azok számára, akik hosszú távon is kényelmes, fenntartható és megbízható otthont keresnek. Kimagasló energiahatékonyságának köszönhetően pénztárcabarát a fenntartása, miközben a stabil szerkezet kiváló hang- és hőszigetelést, valamint földrengésállóságot biztosít. A gyors, tiszta kivitelezésnek köszönhetően akár néhány hét alatt kulcsrakész lehet, a rugalmas tervezés pedig lehetővé teszi, hogy a terek a család egyedi igényeihez igazodjanak. Mindehhez alacsony ökológiai lábnyom is társul – okos választás a jövőre gondoló családoknak.

Ajánlatkérés
Sip Logo

Már csak egy lépésre vagy

Bármilyen kérdésed lenne, vagy konkrét elképzelésed, esetleg információt szeretnél keress minket bizalommal, 24 órán belül válaszolunk.