Ismerd meg a technológiát Lakossági ügyfeleknek Céges ügyfeleknek Típusházak Általános szerződési feltételek Adatvédelmi tájékoztató Kapcsolat

Miami ikerház - 313 m²

Minimál stílusban került megalkotásra ez a kétszintes ikerházunk. A fa betétek a betonhatású elemekkel és a lapostetővel a mai kor kedvelt építészetét tükrözi.

Tökéletes választás lehet 2 gyerekes családok számára. Az alsó szinten kialakításra került egy amerikai konyhás nappali, fürdőszoba, toalett, előszoba és egy zárt garázs.

A felső szinten található 1db nagyobb méretű szülői hálószoba, 2db normál méretű hálószoba, 1db fürdőszoba és 1db gardrób. A terasz kapcsolatok a normálméretű hálószobákból és a ruhatárból is megközelíthetőtek. Az ikerházfél hasznos alapterülete összesen: 156,5 m2

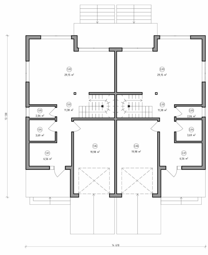
1. ház 1. emelet:
  • Előszoba és lépcsőház 11.38 m²
  • Folyosó és lépcsőház 7.27 m²
  • Fürdőszoba 3.69 m²
  • Fürdőszoba 2.06 m²
  • Garázs 19.98 m²
  • Nappali, konyha, étkező 29.15 m²
2. ház 1. emelet:
  • Előszoba 6.56 m²
  • Folyosó és lépcsőház 11.38 m²
  • Fürdőszoba 3.69 m²
  • Fürdőszoba 2.06 m²
  • Garázs 19.98 m²
  • Nappali, konyha, étkező 29.15 m²
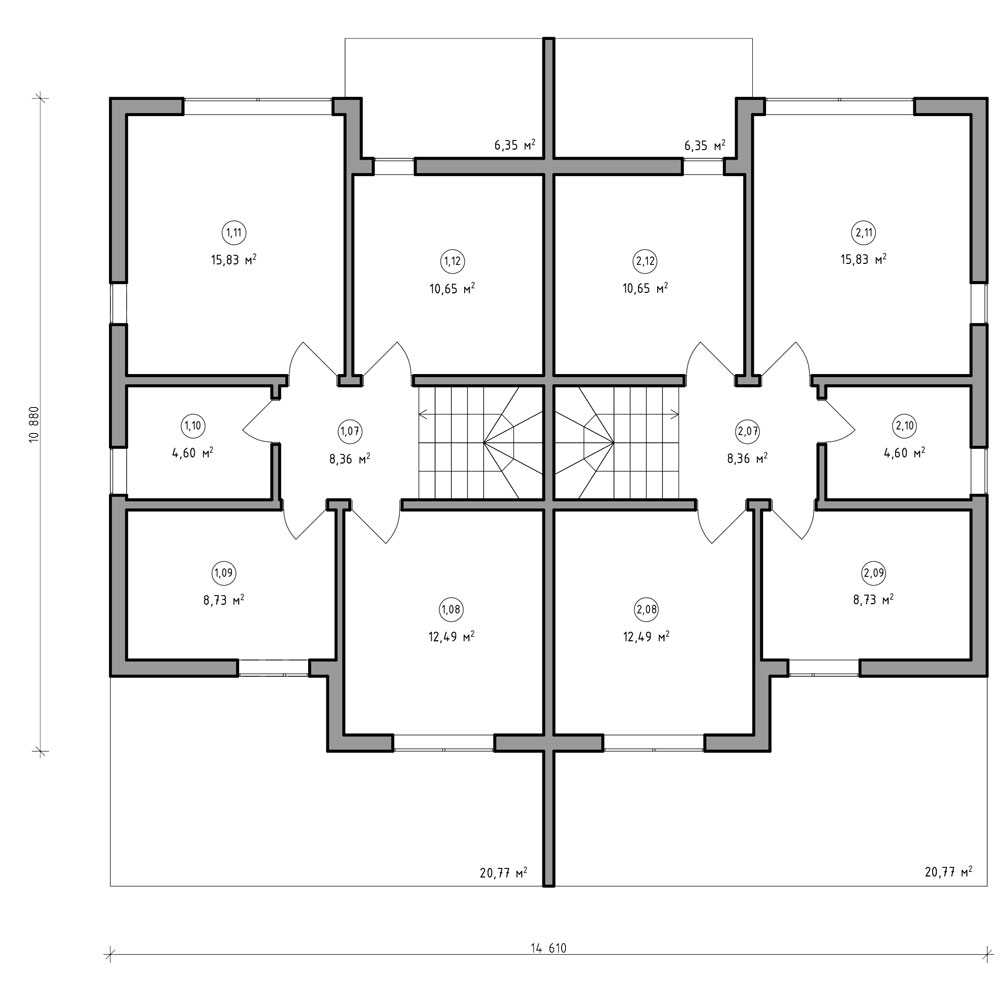
1. ház 2. emelet:
  • Előszoba és lépcsőház 8.36 m²
  • Fürdőszoba 4.6 m²
  • Gardrób 8.73 m²
  • Hálószoba 12.49 m²
  • Hálószoba 15.83 m²
  • Hálószoba 10.65 m²
2. ház 2. emelet:
  • Előszoba és lépcsőház 8.36 m²
  • Fürdőszoba 4.6 m²
  • Gardrób 8.73 m²
  • Hálószoba 12.49 m²
  • Hálószoba 15.83 m²
  • Hálószoba 10.65 m²
  • Nettó alapterület: 267.67 m²

Indulóár: Kérjen árajánlatot elérhetőségeink egyikén!

Kivitelezők figyelem!

A 180–470 m²-es SIP ikerházak a jövő tudatos építőinek készültek. Ha célod a modern, energiatakarékos és gyorsan kivitelezhető lakóingatlanok megvalósítása, ez a típus a te ütőkártyád.

Ajánlatkérés

Két otthon, egy megoldás

A szimmetrikus, mégis elegánsan tagolt kialakítás két teljes értékű otthont rejt, külön bejárattal, jól szeparált kertkapcsolattal – ideális frekventált, kertvárosi vagy agglomerációs telkekre. Az elrendezés tágas amerikai konyhás nappalit, több hálószobát, fürdőket és akár dolgozószobát is kínál – családoknak tervezve, hosszú távra.

Ajánlatkérés

Okos választás építőknek és befektetőknek

A SIP technológiával készült ikerházak ideális megoldást kínálnak azoknak, akik gyorsan szeretnének kivitelezni, mégis hosszú távon értékálló otthonokat kínálni. Az A++ energiahatékonyság, a modern, minimalista megjelenés és a testre szabható alaprajzok mind vonzóvá teszik ezeket az épületeket a tudatos vásárlók számára. A fenntartható, környezetbarát építési mód pedig nemcsak alacsonyabb költségeket, hanem könnyen kommunikálható zöld marketingelőnyt is biztosít. Ha üzletileg is okosan döntenél, ez a típusú otthon a biztos alap.

Ajánlatkérés
Sip Logo

Már csak egy lépésre vagy

Bármilyen kérdésed lenne, vagy konkrét elképzelésed, esetleg információt szeretnél keress minket bizalommal, 24 órán belül válaszolunk.