Ismerd meg a technológiát Lakossági ügyfeleknek Céges ügyfeleknek Típusházak Általános szerződési feltételek Adatvédelmi tájékoztató Kapcsolat

MH 30 - 1

Leírás hamarosan...

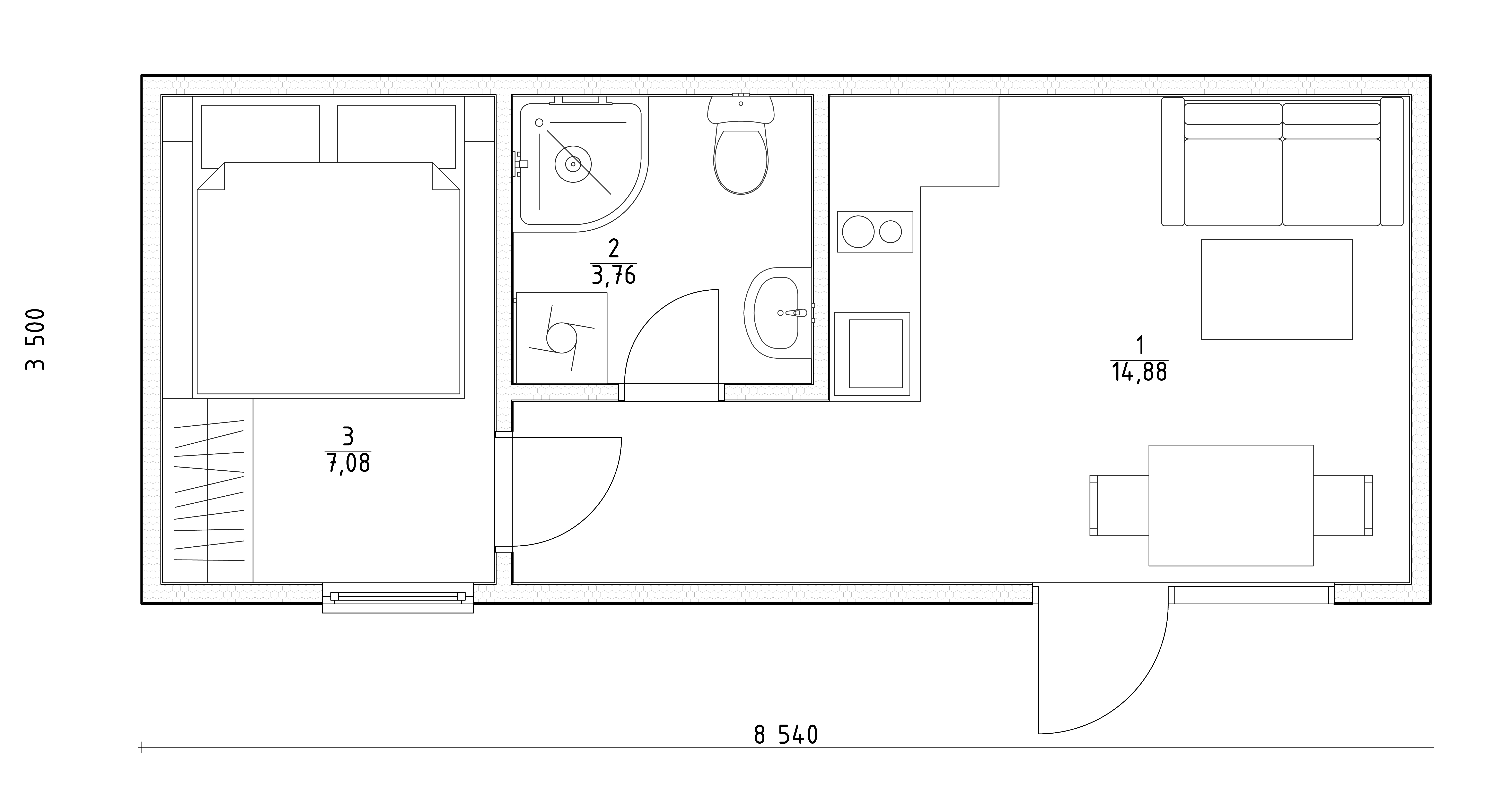
1. emelet:
  • Fürdőszoba 3.76 m²
  • Nappali konyhával 14.88 m²
  • Szoba 7.08 m²
  • Nettó alapterület: 25.72 m²

Indulóár: Kérjen árajánlatot elérhetőségeink egyikén!

Üres telekből értékes ingatlan – kulcsrakész mobilházak

Nagyobb földterülettel rendelkezik, és maximálisan kihasználná annak értékét? Innovatív, kulcsrakész mobilházaink gyors, költséghatékony és rugalmas megoldást kínálnak befektetők számára!

Ajánlatkérés

Üdülőpark vagy kemping? Mi visszük a házakat, Ön adja a helyet!

Akár 5–20 darabos flottában is rendelhetők, így ideálisak turisztikai fejlesztésekhez, kempingekhez, üdülőparkokhoz vagy bérbeadási célra. A házakat teljesen felszerelten szállítjuk – Önnek csak a helyet kell biztosítania!

Ajánlatkérés

Engedélyek helyett eredmények – kezdje el most!

Nincs építési engedély, nincs hosszadalmas kivitelezés – csak gyors megtérülés és maximális rugalmasság. Lépjen velünk kapcsolatba, és hozza ki a legtöbbet földterületéből!

Ajánlatkérés
Sip Logo

Már csak egy lépésre vagy

Bármilyen kérdésed lenne, vagy konkrét elképzelésed, esetleg információt szeretnél keress minket bizalommal, 24 órán belül válaszolunk.