Ismerd meg a technológiát Lakossági ügyfeleknek Céges ügyfeleknek Típusházak Általános szerződési feltételek Adatvédelmi tájékoztató Kapcsolat

Madera - 76m2

Leírás hamarosan...

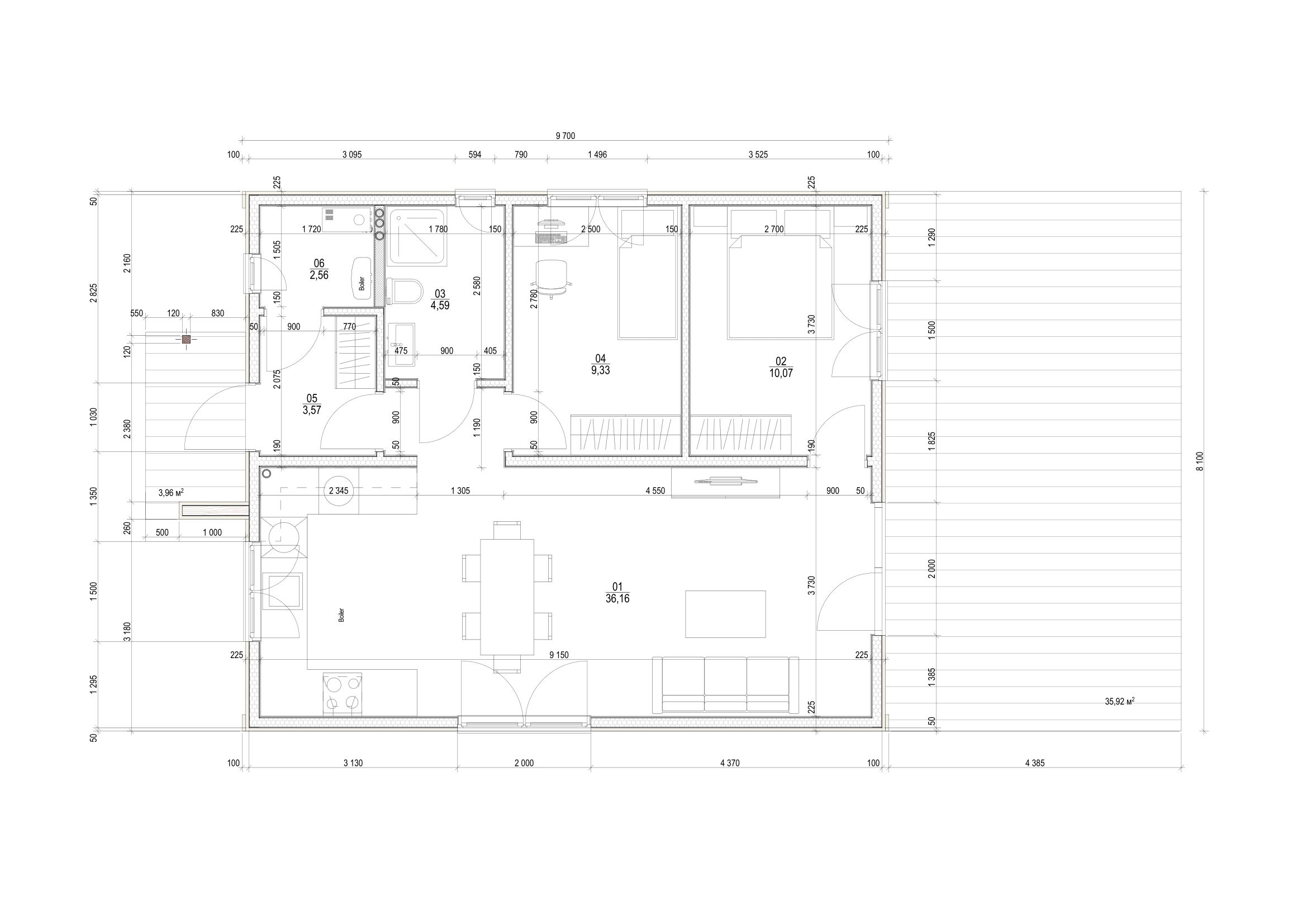
1. emelet:
  • Folyosó 3.57 m²
  • Nappali konyhával 36.16 m²
  • Szoba 9.33 m²
  • Szoba 10.07 m²
  • WC 4.59 m²
  • WC 2.56 m²
  • Nettó alapterület: 66.28 m²

Indulóár: Kérjen árajánlatot elérhetőségeink egyikén!

Kiknek ajánljuk?

A 30–89 m²-es SIP házak azoknak készültek, akik tudatos életvitellel élnek. Fiatal pároknak, kisgyermekes családoknak, egyedülállóknak vagy a természethez visszavágyó városlakóknak ideális választás, akik értékelik az energiatakarékosságot, a letisztult formavilágot és a praktikus térhasználatot.

Ajánlatkérés

Egyszerű forma, végtelen lehetőség

A házak alakja egyszerű, mégis karakteres – könnyen illeszkedik vidéki tájba, nyaralóövezetbe vagy kertvárosi környezetbe. Az elrendezés minden négyzetmétert kihasznál: tágas nappali, világos hálók, igény szerint dolgozósarok, galéria vagy tároló – rugalmas, mint az élet maga.

Ajánlatkérés

Miért éri meg velünk építkezni?

Ez a háztípus ideális választás azok számára, akik hosszú távon is kényelmes, fenntartható és megbízható otthont keresnek. Kimagasló energiahatékonyságának köszönhetően pénztárcabarát a fenntartása, miközben a stabil szerkezet kiváló hang- és hőszigetelést, valamint földrengésállóságot biztosít. A gyors, tiszta kivitelezésnek köszönhetően akár néhány hét alatt kulcsrakész lehet, a rugalmas tervezés pedig lehetővé teszi, hogy a terek a család egyedi igényeihez igazodjanak. Mindehhez alacsony ökológiai lábnyom is társul – okos választás a jövőre gondoló családoknak.

Ajánlatkérés
Sip Logo

Már csak egy lépésre vagy

Bármilyen kérdésed lenne, vagy konkrét elképzelésed, esetleg információt szeretnél keress minket bizalommal, 24 órán belül válaszolunk.