Ismerd meg a technológiát Lakossági ügyfeleknek Céges ügyfeleknek Típusházak Általános szerződési feltételek Adatvédelmi tájékoztató Kapcsolat

Leganza - 113m2

Leírás hamarosan...

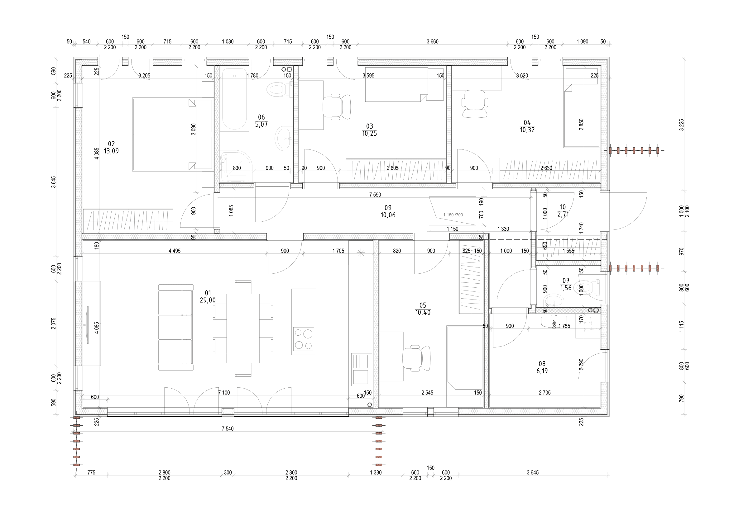
1. emelet:
  • Folyosó 2.71 m²
  • Folyosó 10.06 m²
  • Folyosó 1.64 m²
  • Nappali konyhával 29 m²
  • Szoba 13.09 m²
  • Szoba 10.25 m²
  • Szoba 10.32 m²
  • Szoba 2.71 m²
  • Szoba 10.4 m²
  • WC 5.07 m²
  • WC 1.56 m²
  • Nettó alapterület: 96.81 m²

Indulóár: Kérjen árajánlatot elérhetőségeink egyikén!

Kiknek ajánljuk?

A 90–180 m²-es SIP házak azoknak szólnak, akik tágas, modern, otthont keresnek. Ideális választás többgyermekes családoknak, otthonról dolgozóknak, akik külön dolgozószobára vágynak, vagy többgenerációs együttélést tervezőknek, akiknek fontos az elkülönülés és az összetartozás egyensúlya.

Ajánlatkérés

Letisztult forma, élhető terek

Letisztult, mégis karakteres formavilágukkal természetesen simulnak bele kertvárosi környezetbe vagy vidéki panorámába. Az átgondolt alaprajzok biztosítják a kényelmet: külön szülői háló saját fürdővel, világos nappali nagy üvegfelületekkel, tágas konyha-étkező, gyerekszobák, sőt akár gardrób vagy hobbiszoba is helyet kaphat.

Ajánlatkérés

Modern otthon, okos döntés

Ez a háztípus ideális választás azok számára, akik hosszú távon is kényelmes, fenntartható és megbízható otthont keresnek. Kimagasló energiahatékonyságának köszönhetően pénztárcabarát a fenntartása, miközben a stabil szerkezet kiváló hang- és hőszigetelést, valamint földrengésállóságot biztosít. A gyors, tiszta kivitelezésnek köszönhetően akár néhány hét alatt kulcsrakész lehet, a rugalmas tervezés pedig lehetővé teszi, hogy a terek a család egyedi igényeihez igazodjanak. Mindehhez alacsony ökológiai lábnyom is társul – okos választás a jövőre gondoló családoknak.

Ajánlatkérés
Sip Logo

Már csak egy lépésre vagy

Bármilyen kérdésed lenne, vagy konkrét elképzelésed, esetleg információt szeretnél keress minket bizalommal, 24 órán belül válaszolunk.