Kivitelezők figyelem!
A 180–470 m²-es SIP ikerházak a jövő tudatos építőinek készültek. Ha célod a modern, energiatakarékos és gyorsan kivitelezhető lakóingatlanok megvalósítása, ez a típus a te ütőkártyád.
Ajánlatkérés
Modern stílusban került megalkotásra ez a kétszintes ikerházunk. A falambériázás, az elegáns fehér szín, az antracit nyílászárók és a ferdetető kialakítás, a mai kor kedvelt építészetét tükrözi.
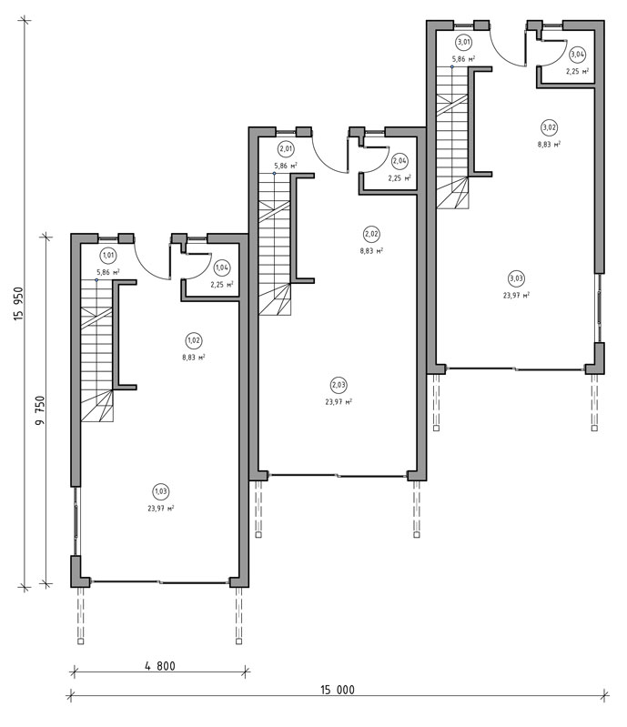
Tökéletes választás generál kivitelezőknek vagy befektetőknek egyaránt. Az alsó szinten kialakításra került egy amerikai konyhás nappali, vendég wc és egy közlekedő.
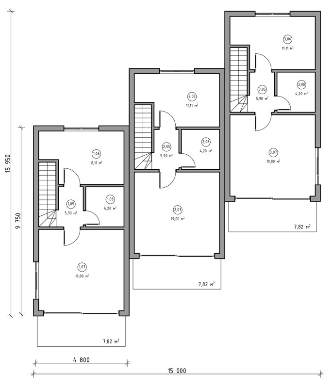
A felső szinten található 1db nagyobb méretű szülői hálószoba, 1db normál méretű hálószoba és 1db fürdőszoba-toalettel. A terasz kapcsolat a szülői hálószobából elérhető. Az ikerházfél hasznos alapterülete: 81 m2
Indulóár: Kérjen árajánlatot elérhetőségeink egyikén! Az oldalon feltüntetett árak a Győri régióra és az emeltszintű fűtéskész kivitelre vonatkoznak, és régiónként eltérhetnek. Kérjük, kérjen személyre szabott árajánlatot az Ön telepítési helye szerint.
A 180–470 m²-es SIP ikerházak a jövő tudatos építőinek készültek. Ha célod a modern, energiatakarékos és gyorsan kivitelezhető lakóingatlanok megvalósítása, ez a típus a te ütőkártyád.
Ajánlatkérés
A szimmetrikus, mégis elegánsan tagolt kialakítás két teljes értékű otthont rejt, külön bejárattal, jól szeparált kertkapcsolattal – ideális frekventált, kertvárosi vagy agglomerációs telkekre. Az elrendezés tágas amerikai konyhás nappalit, több hálószobát, fürdőket és akár dolgozószobát is kínál – családoknak tervezve, hosszú távra.
Ajánlatkérés
A SIP technológiával készült ikerházak ideális megoldást kínálnak azoknak, akik gyorsan szeretnének kivitelezni, mégis hosszú távon értékálló otthonokat kínálni. Az A++ energiahatékonyság, a modern, minimalista megjelenés és a testre szabható alaprajzok mind vonzóvá teszik ezeket az épületeket a tudatos vásárlók számára. A fenntartható, környezetbarát építési mód pedig nemcsak alacsonyabb költségeket, hanem könnyen kommunikálható zöld marketingelőnyt is biztosít. Ha üzletileg is okosan döntenél, ez a típusú otthon a biztos alap.
Ajánlatkérés
Bármilyen kérdésed lenne, vagy konkrét elképzelésed, esetleg információt szeretnél keress minket bizalommal, 24 órán belül válaszolunk.